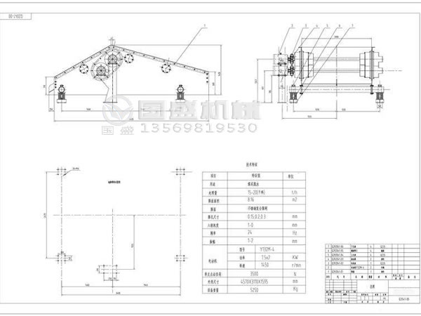
脱水筛安装事宜
1、安装前,要把现场基础与脱水振动筛安装图对照检查,预埋钢平面小于3mm。
2、安装时,根据筛子从下到上的顺序安装。

3、安装完毕,调整好相对位置,保证减振簧均呈垂直状态,电机轴线应低于激振器轴线3~5mm,在把电机支架,弹簧底座与预埋钢板焊牢。

上一篇:设备润滑知识和标准 下一篇:麻豆AV免费在线看应用范围



新乡市91麻豆精品网站机械设备有限公司 豫ICP备89202675号-2 技术支持新乡志远网络公司 地 址:新乡市长济高速西出口